
| 賃料 | 25万円 | 共益費 | 0 円 |
|---|---|---|---|
| 敷金 | 1 ヶ月 | 礼金 | 1 ヶ月 |
| 契約期間 | 0 年契約 | 更新料 | 0ヶ月 |
| 間取り | 3LDK LDK18畳 洋室6畳 洋室6畳 和室7.5畳 |
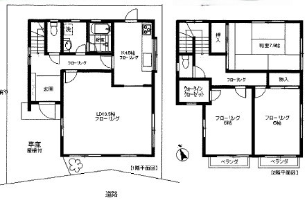
建物面積 | 90.66㎡ |
| 建物構造 | 木造 | 築年数 | 1991/4 |
| 所在地 | 東京都大田区北馬込1丁目 | 交通 |
東急大井町線荏原町駅 徒歩6分 東急大井町線旗の台駅 徒歩9分 |
| 小学校学区 | 中学校学区 | ||
| 駐車場 | 駐車場1台付き(無料) | ||















仮住まい専用物件 ご自宅の立替・リフォーム工事の 期間中の為の仮住まい専用物件です。 ペット飼育可で車庫も1台分付いてます。 全居室に収納が付いてますので、 荷物の多いご家族も安心です。 キッチンには食器洗浄乾燥機が付 いてますので、日々の家事の負担 を軽減してくれます。 【お問い合わせ】 電話の場合 : 03-3710-5921 Mailの場合 : t.aragaki@kei-zu.co.jp 部屋コード : 25058 お気軽にお問い合わせ下さい。


| 住所 | 東京都大田区北馬込1丁目 | ||
|---|---|---|---|
| 賃料 | 25万円 | 共益費 | 0 円 |
| 敷金 | 1 ヶ月 | 礼金 | 1 ヶ月 |
| 契約期間 | 0 年契約 | 更新料 | 0ヶ月 |
| 交通機関 | 東急大井町線荏原町駅 徒歩6分 東急大井町線旗の台駅 徒歩9分 |
||
| 間取り/間取り詳細 | 3LDK LDK18畳 洋室6畳 洋室6畳 和室7.5畳 |
向き | 南向き |
| 専有面積 | 90.66m² | 建物構造 | 木造 |
| 所在階/総階数 | 地上2階 | 築年月 | 1991/4 |
| 設備 | ペット可能 ガスコンロ 三口コンロ システムキッチン 食器洗い乾燥機 給湯 追い焚き 洗髪洗面化粧台 独立洗面台 バス・トイレ別 温水洗浄便座 エアコン 室内洗濯機置き場 光ファイバー 地デジ対応 TVドアホン 都市ガス 駐車場有 駐輪場 フローリング ■駐車場1台付き(無料)■ | ||
| 入居可能予定日 | 即時 | 取引形態 | 仲介 |
| 駐車場 | 駐車場1台付き(無料) | ||
| 小学校学区 | 中学校学区 | ||
| 備考・特記事項 | ■駐車場1台付き(無料)■ | ||
| 部屋コード | 25058 | ||
