
| 賃料 | 共益費 | ||
|---|---|---|---|
| 敷金 | 1 ヶ月 | 礼金 | 1.5 ヶ月 |
| 契約期間 | 2 年契約 | 更新料 | 1ヶ月 |
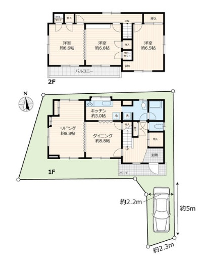
| 間取り | 3LDK LDK20畳 洋室6.5畳 洋室6.6畳 洋室6.6畳 |
建物面積 | 97.48㎡ |
| 建物構造 | 木造 | 築年数 | 1979/1 |
| 所在地 | 東京都大田区南雪谷4丁目 | 交通 |
東急池上線御嶽山駅 徒歩6分 東急池上線雪が谷大塚駅 徒歩7分 |
| 小学校学区 | 調布大塚小学校 | 中学校学区 | 東調布中学校 |
| 駐車場 | 敷地内駐車場1台付き(軽自動車サイズ) | ||








キッチン、浴室、洗面所の水回りを 交換しました。 東急池上線「御嶽山駅」「雪が谷大 塚駅」が近く、日常生活のお買い物 に便利な立地です。 敷地内駐車場1台分付きですが、軽 自動車が駐車出来るサイズとなりま す。 【お問い合わせ】 電話の場合 : 03-3710-5921 Mailの場合 : t.aragaki@kei-zu.co.jp 部屋コード : 25013 お気軽にお問い合わせ下さい。


| 住所 | 東京都大田区南雪谷4丁目 | ||
|---|---|---|---|
| 賃料 | 共益費 | ||
| 敷金 | 1 ヶ月 | 礼金 | 1.5 ヶ月 |
| 契約期間 | 2 年契約 | 更新料 | 1ヶ月 |
| 交通機関 | 東急池上線御嶽山駅 徒歩6分 東急池上線雪が谷大塚駅 徒歩7分 |
||
| 間取り/間取り詳細 | 3LDK LDK20畳 洋室6.5畳 洋室6.6畳 洋室6.6畳 |
向き | 南向き |
| 専有面積 | 97.48m² | 建物構造 | 木造 |
| 所在階/総階数 | 築年月 | 1979/1 | |
| 設備 | 三口コンロ システムキッチン 追い焚き 浴室乾燥機 温水洗浄便座 エアコン 室内洗濯機置き場 地デジ対応 TVドアホン 都市ガス 駐車場有 駐輪場 バイク置き場 保証会社加入必須:初回保証料50% 住宅総合保険30,000円/2年 ■敷地内駐車場1台分付 長5.0m幅2.2m■ | ||
| 入居可能予定日 | 取引形態 | 仲介 | |
| 駐車場 | 敷地内駐車場1台付き(軽自動車サイズ) | ||
| 小学校学区 | 調布大塚小学校 | 中学校学区 | 東調布中学校 |
| 備考・特記事項 | 保証会社加入必須:初回保証料50% 住宅総合保険30,000円/2年 ■敷地内駐車場1台分付 長5.0m幅2.2m■ | ||
| 部屋コード | 25013 | ||
